HIAWATHA HOUSE
-
Location: Hiawatha St. Porter Ranch,CA 91326 US
-
Year: 2025
Stage: In Process
Style: A clash of Modern, Classic and Rustic designs
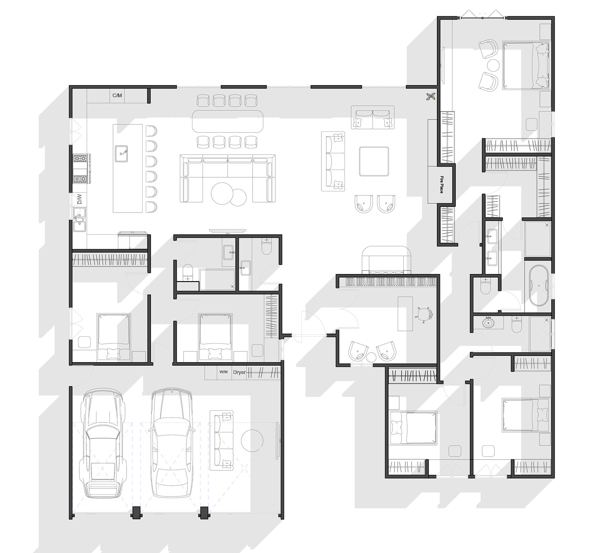
Area: 3337 sq.ft.
Every home carries a story, and at Hiawatha street we wanted to shape a narrative that feels both timeless and deeply personal. The project became an exploration of balance, where American Classic elegance meets the warmth of rustic textures and the clean lines of modern design.
The client’s wish was simple yet profound: a functional interior that embraced natural materials and infused the living space with shades of green.
This residence includes one master bedroom and four additional bedrooms, designed to offer both privacy and togetherness for the family.
Modern solutions ensure comfort and practicality, while statement chandeliers introduce character and light, turning the interior into an experience rather than just a space.
Each bedroom continues the home’s central theme: a harmony of natural comfort and timeless sophistication.
Bedrooms combine a textured accent wall with sleek modern solutions, creating a space that feels both tactile and effortlessly contemporary.
Throughout the house, stone and wood create a sense of grounding, while classic molding details and patterned wallpapers add a touch of refined sophistication
What makes Hiawatha truly special is the seamless dialogue between styles. The elegance of European classicism, the practicality of American tradition, and the warmth of rustic materials coexist effortlessly, creating a space that feels rich in heritage and refreshingly contemporary.

-
Events
