VD House
-
Location: Vayots Dzor Province, Armenia
-
Year: 2021
The house is located in the heart of nature, far from urban chaos. So we decided not to disturb the harmony, designing a place to continue the surrounding nature.
With this in mind, we used floor-to-ceiling windows to reflect the view. They offer transparency while also providing privacy.
The remaining materials we used for the exterior are of natural origin: metal, wood, and stone are mined from the soil— they are part of our planet. So, the roof, walls, and other construction elements blend in just right. It seems the house was created by Mother Earth herself.
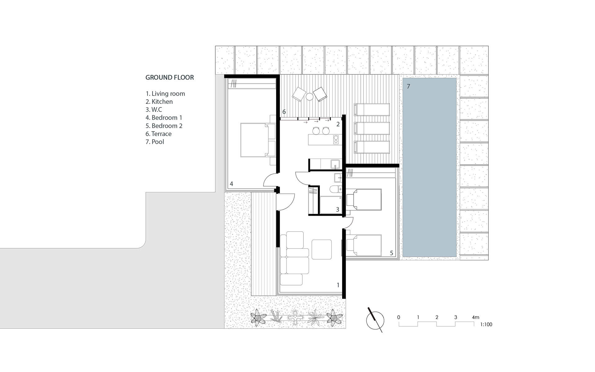
The area is only 60sq meters, which is somewhat restrictive. Yet, we fitted a living room, a kitchen, and two bedrooms. There's even a small terrace and a pool for the hot summer days.

-
Portfolio
